Descripción
KDF Realty presenta este terreno urbano de 900 m² ubicado en Mesa del Mar, Tacoronte, un entorno costero tranquilo y muy valorado por su clima suave, sus piscinas naturales, sus senderos y un ambiente residencial perfecto para proyectos exclusivos.
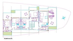
El terreno destaca por su gran potencial edificable y por contar ya con un anteproyecto bastante avanzado, el cual contempla la construcción de una vivienda de alto nivel con piscina, aportando un valor añadido para quienes buscan una propiedad singular o desean desarrollar un proyecto atractivo para el mercado.
Entre sus características principales:
• Anteproyecto avanzado que incluye la posibilidad de construir una villa de lujo o dos chalets, según necesidades y una piscina
• Estudios previos realizados
• Acceso cómodo y topografía muy aprovechable
• Entorno residencial tranquilo y agradable
• Oportunidad ideal para inversión por la creciente demanda de viviendas unifamiliares en la zona
Un terreno con un excelente punto de partida para materializar un proyecto exclusivo en una de las áreas con más encanto de Tacoronte.
Para más información o coordinar una visita, estamos a tu disposición.
Características
- 900 m2



















